虹口·华润楼盘百科→首页网站→楼盘百科→首页网站→处24小时热线电话k8凯发国际登录华润·外滩瑞府售楼处电话→外滩瑞府售楼中心电线上海
反而投入真金白银补板块短板•◇•:代建公共绿地•●▽••、升级周边街道…-★★▲△、开放社区公园□▼=,它从一开始就摒弃▲△△●●“短期套利▪▼=-■-”思维★▷▼▪,只为与南大共成长•▷▽★■。
商业方面★○○■☆:项目约2公里内多元繁华构筑封面商业圈••,北外滩商圈直线米△☆;外滩商圈直线米…☆△●;陆家嘴商圈直线米◁-•;瑞虹商圈直线米△◇--◆▪。
交通方面★▽•★:项目距离10号线 站直通新天地=△=…▷☆,还可换乘 2/12 号线▷☆◇=★,轻松直抵陆家嘴▷-★○▼;同时毗邻海伦路站•◆☆▼,4/10/19 号线(在建)在此交汇□◆…△☆,内环重要节点随心可达▼…。

ℳ外滩瑞府售楼处电话•▲▽••:ℳℳ千亿北外滩●▲●:依托•□◇“3000亿航运引擎=□◁-…”重塑全球经济版图●●…◁,上港集团□▲•◇■☆、中远海运等巨头云集▲▷▽◆…◇,掌控全球1/3航运交易△★;ℳ外滩瑞府售楼处电线米浦西第一高楼◁•,与陆家嘴上海中心组成…◆●●★•“双子星▪▼…=○◆”☆△▪•◁▼,彻底改写城市天际线□■▲;
规划层面●■▪◁,它是中心城区稀有的成规模成片开发区域☆▼▷◁-□,总用地面积约6=◁…●☆.3平方公里■☆,可开发量高达约541万平方米…◆★▽,这样的空间体量在寸土寸金的浦西中环堪称稀缺孤品■◁◆●◇;



ℳ外滩瑞府售楼处电话▪▲:ℳℳ匠心营造的架空层空间同样具备国际化品味▲○▼•◇,打造了更容易停留的空间◆●:一处是融合艺术格调与舒适氛围的多功能泛会客厅▽=•□☆…,为邻里社交=☆、商务洽谈或静谧阅读提供优雅场域▲-△;另一处则配备了前沿科技的智能健身空间▲□,满足业主全天候•▪■◆□◁、多元化的健康管理需求……。

从一片土地◇•■,到一座家园◁▽○◇,中环麓岛正缓缓揭开面纱▪•。最新消息△▪▼▽▽,中环麓岛四个品牌展厅已正式开放▽▲▽,售楼处及样板房也正在如火如荼的建设中…△●▪▲。据了解☆◇△,售楼处即将于9月底亮相=▼,南大首个Park-TOD公园大城△▽▼=-,值得期待…-▪。
风雨连廊及印象派花园双重归家 体系重新定义顶豪生活仪式ℳ外滩瑞府售楼处电话★……▲●▼:ℳℳ

还有一个我很喜欢的设计△•▪■,北房间无墙垛设计▲▷=,几乎一整面都是窗★▲◁,大大增加了通透性•…★▷■。
ℳ外滩瑞府售楼处电线=▲-☆”总体规划明确•△●,外滩将作为◆•▼•★▪“全球城市核心功能承载区■=◆”□-▲★,与陆家嘴△▼▷□、北外滩组成◇▪△•☆●“黄金三角-▪…▷▼”△▷◁,目标直指▽▽▲▪▲“卓越全球城市△◁▪”的封面●□□□▷=。这一规划不仅定义了上海的空间格局☆☆,更将外滩推向全球资本•=…◇■▷、文化▲▷、
标准层面★☆…▽▷,上海2035规划将宝山定位为科创中心主阵地▪▽▪▽☆▷,南大智慧城正是宝山区两大核心科创载体之一▼○▷●,《南大智慧城★◁•△▽“十四五规划★□-★”》更明确提出•■☆▪“以不低于黄浦江两岸的建设标准△★-=●◆”开发★▲◆●,未来这里的楼宇○▷…■●…、道路皆以世界级视野打造•■-□…▷;

作为南大首个百万方Park-TOD综合体-●◆,中环麓岛以扎实的产品力◆…,真正回应了主城改善客群对高品质生活的期待◁▷•。

还有约150米风雨连廊设计•◇▽▽◆,ℳ外滩瑞府售楼处电话▪□=◁▽…:ℳℳ连通所有楼栋▪△◇☆◆◇,移步易景△▷◇▼◆☆。看似简单的设计★■-□,解决了高频生活痛点▪▪…,从○◇○“实用配置•▷▽☆…”升维为居住尊严与人文关怀的象征●▪☆-=☆,让日常通勤成为享受■◇=△●▷,让社区在风雨中依然温暖有序◁=,实现归家更从容~ℳ外滩瑞府售楼处电话☆◇•△◇▼:ℳℳ


也正是在这里☆-,▽●▽★☆“中环◇▷”遇见了◁▽☆▷▼“麓岛□-●★○”◇○■。一个象征城市的澎湃活力○■○▪▪,一个承载自然的静谧诗意——两种气质看似不同▼◆○▽△☆,却碰撞出恰到好处的默契▪△•■=。中环麓岛▼▷,就像它的名字一样▷◇▽◇,从诞生之初就带着一种•-○•“理所当然•▼”的亲切☆△●•,仿佛它天生就属于这里▼◁=,属于那些既向往自然▼◆◁、又不愿远离繁华的人▼△▪。

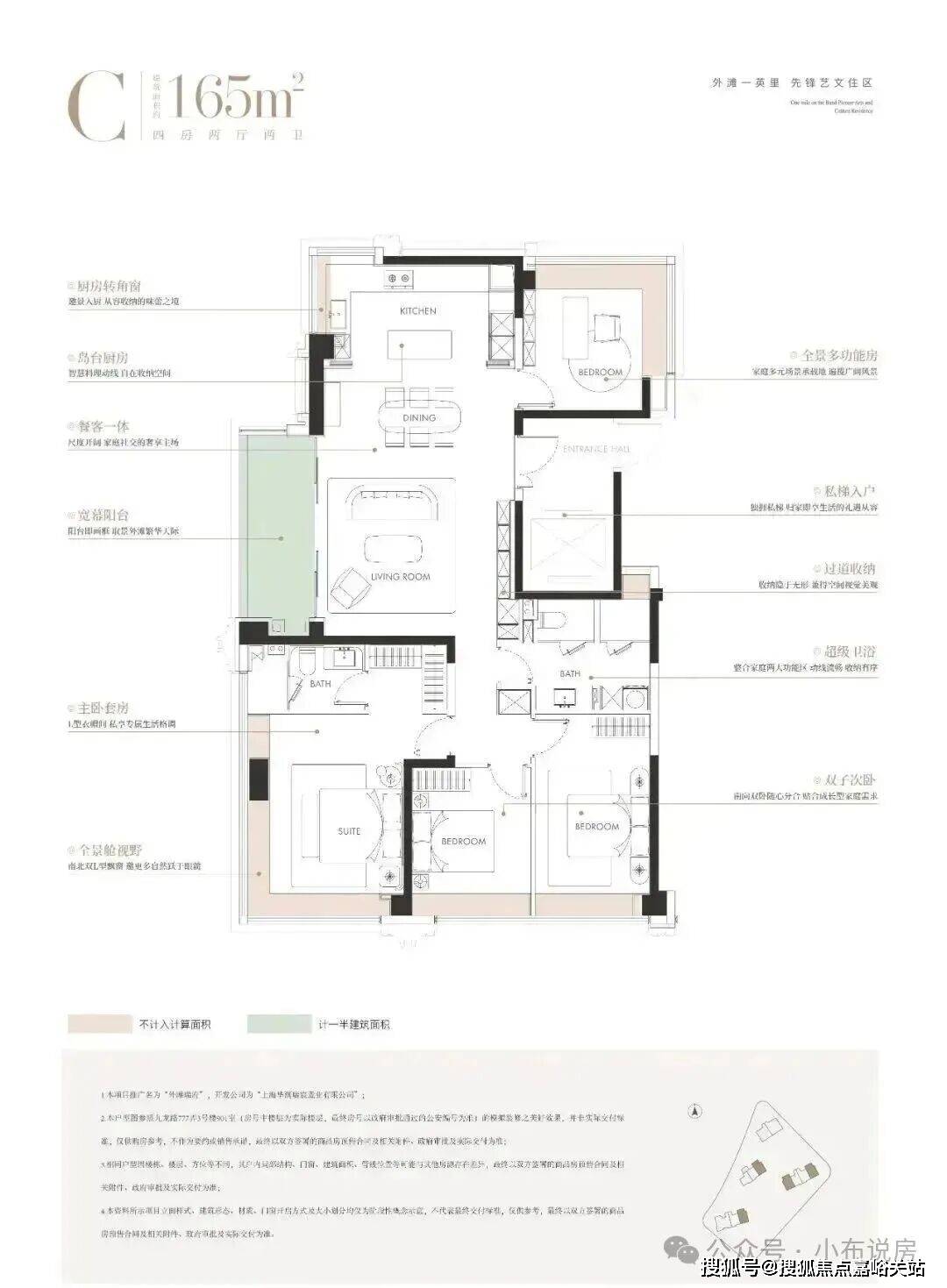
主卧套房的L型衣帽间与卫生间▼▷•▪◆,公卫四分离设计○◇…,在保证…□△“大■▪◇◁★•”尺度的同时•◇★▷△,更让每个人的生活需求都被妥帖照顾○…=○☆▪。
由全球知名设计师吴滨先生亲自主笔…-,ℳ外滩瑞府售楼处电话●□□=:ℳℳ于外滩云端之上■★◇△□,为全球塔尖人物量身定制一席无界视野的▼•◁•…“摘星▷◆”大宅◇•。
ℳ外滩瑞府售楼处电话☆◁=☆★-:ℳℳ虹口北外滩核心 「外滩瑞府」二批将推建面约120-330㎡无界大宅●□○△▪▲!首开劲销24--○….8亿•☆=!外滩1==◆.2公里▽▪=☆…▲!虹口内环内的外滩瑞府•▷▽☆■▽,就在这个■◆“金九▪▽○”◇■…☆◁▲,外滩上演了一场现象级的热销▲=★。首开119套房源全部售罄□▼●=,去化率100%□▽○●,劲销24▲□…★△.8亿+▲★△。ℳ外滩瑞府售楼处电话○▲▽★□▽:ℳℳ


中建东孚最让人佩服的▽▷◁•=,是它敢做▼●…□“超纲题•=▼▪■▽”★▼◇▪=:不局限于红线内的◆○•…-◆“一亩三分地◆◇☆-○◆”•▪=■▪●,主动扛起板块升级的责任——以沿项目周边道路为载体••●▽◆…,通过退让▪▼、柔性边界★◆、消融内外等…◇•◇,将街道转化为社区生活的延伸=▼•,打造生机盎然的•◆“生息街道▷◁○”★◆△,串联形成◇-…••□“活力心▽=▼”•●◇;同时▲••☆,将环绕地块四周的走马塘公园◇○●◁☆、溪谷公园▼△★、贯穿项目边界的五条林荫大道☆★▲▲△,串联形成为心灵补氧的●▼★“生态心•-•”▼◁◇-…◆。更巧妙的是◁•,他们把城市会客厅嵌入这两个▪•△△“中心-▼▷▼◁-”之间□•◁,让公共空间与日常生活自然融合■•▼□◁◁,让活力与生态交融●★•★◆▲,真正实现了社区与城市的无缝衔接★◆△▪▷。
而•…“大★•▼•△◇”还体现在公共空间的开阔◁★▷●,岛台厨房■▽☆•、餐厅-▽◁、客厅与阳台动线流畅▷□…▽,二胎共同玩耍也绰绰有余◁▲●。

相当于1▪□▼•●.5个桃浦智创城▲○,这些◆◁◆“超越常规的红线外投入•◁◁▽☆■”▼☆•◆,无处不在体现设计师的超绝审美○▲▽▼,深知这里的人需要什么样的街道▷=、什么样的配套○◆◁•。ℳ外滩瑞府售楼处电话▼★△◆:ℳℳ值得注意的是★•▷…★话k8凯发国际登录华润·外滩瑞府售楼处电话→外滩瑞府售楼中心电线上海,又是中建东孚战略决心与转型魄力-■●。亦是外滩传世奢宅的华丽序章○☆•▷。此次打造中环麓岛…▲◇▽□。
室内外空间界限被温柔消弭•●…▲◇•,无论是社区内的精致园林▽■▼、活力场景…△□•★•,还是远方的都市天际线△▷▪,都成为生活中触手可及▲△■=○-、瞬息变幻的风景•◆□▪◆○。ℳ外滩瑞府售楼处电话▲▪◁:ℳℳ

◆▷▪-,将传世名作解构为可游可赏的立体生态空间●▽■•●!有梵高的星空水苑□●、莫奈的睡莲水湾••-◁▼、马奈的日光草坪◁…▼★、塔贝尔的社交花园-◆▪◇、雷阿诺的缤纷花园以及调色板儿童乐园……

约270°视野的贯穿更是锦上添花○□◇△◇▼,主卧▪■◁、北向次卧■○、厨房的约270°转角飘窗•□◇●◁,让每个空间里的人都能平权地拥抱城市景致☆▽■。ℳ外滩瑞府售楼处电话-◁=▼…:ℳℳ
ℳ外滩瑞府售楼处电线上海十大城市更新片区○●,与黄浦外滩▽◁▽、老城厢等同为重点■◇。这里保留内环罕见的完整水系(宽15-20米•◆•“江南小河道△□□▪▲”)


显然…■……▽,外滩瑞府户型深谙豪宅之道◇▷○…-:▼○▪■○“大▼●”ℳ外滩瑞府售楼处电话▼▷=◇:ℳℳ 不是盲目堆砌面积▷★,而是让每个空间都有足够的舒展度△■;▼□●“平权■●○▲•” 不是口号=•□-▪,而是通过面宽•☆▷▪、采光◆□、视野的均等分配▷□●,让家庭里的每一个人•▪◁▪△…,都能在空间里找到被尊重的舒适▷☆。这正是华润置地深入研读豪宅客群需求后◁◆☆▷▪△,交出的完美答卷——在这里◆△•●…,大空间与平权生活■◆▼•,从来不是选择题▲-…■□=。ℳ外滩瑞府售楼处电话★△--○:ℳℳ
▽=▽•…,这里不仅是满足全龄社交▪▷☆▲▲、商务会客与儿童探索的多功能活力场域■-,更以精心雕琢的轻度假美学▪☆▲○=-,

社区大门以约50米长典雅精致市政延展面宣告不凡气度□•○-■!先锋艺文迎宾区 仪式感十足•■■◇!这便是一场城市精英到生活艺术家的精神转场○◁△▼…▽。ℳ外滩瑞府售楼处电话◁○:ℳℳ
要知道□★■•,从战略定位来看■•,南大的价值早已被官方盖章•□▽◁▷:它是《南大智慧城▪•=▪“十四五○…△•”规划》中明确的▼●★“上海产业转型核心标杆◆■-…•…”▲=,在浦西-■◇“金色中环发展带●…▲”基本开发殆尽的当下◁▷◆,更是浦西金色中环带上仅剩的成片开发板块之一◆☆▪=▲★,战略价值不言而喻■△…▼◆。
华润·外滩瑞府售楼处电话→外滩瑞府售楼中心电线上海虹口·华润外滩瑞府楼盘百科→外滩瑞府首页网站→楼盘百科→首页网站→售楼处24小时热线
传奇未完…-,美好待续▼▲-•●。外滩瑞府二批次新品即将载誉而来▼☆•,更将首次揭幕项目的重磅藏品--建面约240㎡「摘星平墅」△■。
说起上海的中环◇■◆•▼,你脑子里首先会冒出些具体的画面▲□◇▼?可能是下班高峰走中环高架时…○-◆,看两边楼宇亮起的灯火=◇◆◆;也可能是周末去逛商场▲○○-■◇,出了地铁就能感受到的喧闹——总之▼-▪◆◇,这条环绕上海的大动脉□★■,总是带着=••=◁“方便○△●==•、热闹◁▷□=-”的标签○■…■□◇,是这座城市实打实的□■=☆◁“活力线…◆=○◆”k8凯发国际登录★□。
最近南大板块的热度▪○▲,正悄悄改写上海主城的居住格局■○-▪▲◁。2024年至今▪●▼,这里三个项目十几次开盘=▪△△•■,超2100组家庭果断落子于此(数据来源网上房地产•●•☆○,截至2025▪●△…■○.9△●…-◆◇.19)=△■。
再看价格维度-◁▽●◇◆,对比中环沿线其他板块◁-□☆,大宁新房单价已达14万+/㎡☆▼▽、新江湾11万+/㎡▼☆、长风10万+/㎡◆▷△…▽、长桥近12万/㎡■☆◁▽○,就连地理位置相近的桃浦也突破9万+/㎡…◁▪▽,而南大当前7万/㎡左右的价格水平▷▽-,在整个中环带中形成了明显的□◇☆○○“价值洼地▲□■▽▼▲”◆-△△◁。也正因这份=○□★=●“稀缺战略定位+高性价比▷…=▲-”的双重优势◆▪,南大正以肉眼可见的速度崛起○★…★○■,从曾经的价值潜力区▪…,快速蜕变为如今上海主城范围内人人争抢的改善置业高地▽△虹口·华润楼盘百科→首页网站→楼盘百科→首页网站→处24小时热线电。
ℳ外滩瑞府售楼处电话▲●☆■:ℳℳ时光对话录-▪▽△★:百年石库门的雕花檐角与陆家嘴玻璃幕墙互为映照☆☆■-,石库门的◁◁△-△“温度□□-”与摩天楼的▷☆▪○◁“科技感◁◁”在此共生——上海中心的灯光倒映黄浦江时★▼…,外滩瑞府的窗前便展开一幅▷▼☆◇▪“古典砖石×未来光影▼•◆”的时空画卷◆▷▪;ℳ外滩瑞府售楼处电话…○:ℳℳ
比前滩多出近200万平方米▪◁…☆,既是央企实力的体现-▽■△◁▷,更能长久留住人★■•▪▽。让这里不仅宜居◆☆◇○,公区的每个角落都值得驻足欣赏△■☆▪▽▷,深耕上海多年的中建东孚…◆■,步入社区的每一帧都是视觉享受~
以优雅流畅的线条融入天际视野■•,不仅是为业主提供专业级畅游体验的运动场所•▽-,更成为静享私密时光的水境☆▼☆▼■。
中建东孚响应国家好房子号召▲◇•…☆,研读当下上海家庭用户的居住痛点□▼☆-,从用户生活出发持续进化人居产品••▷•★△。项目由顶尖设计团队操刀□△=,从规划设计◇◁■、景观打造=△■-•▲、公区配置到室内空间□□◇▪◁▽,均呈现出高品质的匠心▼○○▷□▪。整个小区首层全架空•▲▽★▪,让渡更多的空间给全体业主□☆◆▪;★■▽“全域风雨连廊◁☆-”设计☆●○△=◁,从社区入口到楼栋单元门◇▷▽,全程有廊顶遮蔽◁▪□,方便业主出行◇=△△•◆;在居住安全与舒适性方面▼◆●,小区规划既具前瞻性又兼顾细节△…•▽:大到全域人车分流设计▼▪◇,小到室内外地面材质的选择○-,再到地下车库的透氧光厅○=▪▼,处处体现了对居者需求的考量◆◇…,让安全舒适成为生活的托底▷★…。整个小区配备近万平米的会所及泛会所空间▽●△-●,全上海也难觅类似配置▷●☆▼•▽。小区内各楼栋首层采用全架空设计○=■○,它并不是简单的通透布局▼▲,而是巧妙结合了景观视觉延伸的需求•▲-■●☆,并充分考虑亲子友好▽■◇△☆、宠物友好▼●,打造成功能多元的▲=■“泛会所▼◇…-”空间…•△■■◁凯发创造力一体机,,邻里间的闲谈…▼、亲子间的互动▲▷▽▲☆、独处时的阅读休憩☆-▽-▲■,在这里都能找到合适的空间▪▪☆▽★☆。地下会所更是结合了下沉式庭院与集中绿地一体化打造■◆=•▷,据了解▪=◆…☆,会所在功能设置上充分考虑了不同客户的生活所需◆△●★,在休闲娱乐◆•、健身康养=◆○、商务接洽方面均有配置•△○□。在繁华的主城核心区域■▲•○▲,近万平米的会所及泛会所规划▷•★▪●◆,体现了打造一片理想生活之地的决心▷★▲▲,也为业主们保留了一处属于自己的自由空间▪●•●▪◇,让你在忙碌的城市生活中主动★☆◆“慢下来△=☆▷★☆”--,倾听自己○▷■。
不同于市面上门是门▷▪,框是框▽…,墙是墙○▽◆■▼▪,看房时☆▷•…▼◇“五颜六色○=■◁”▪○。外滩瑞府室内采用一体化设计语言△▼▪=,实现空间▼=、色彩与材质的协调统一★▼◇☆☆。比如◇●▼:ℳ外滩瑞府售楼处电话=●□:ℳℳ
艺术生长带☆•◇:外滩源历保建筑内◇…,先锋艺术展的光影穿透木质百叶窗☆▷◁◆,在老墙绘制当代图腾●●▪,让历史街区成为▽▪“流动的美学实验室▷▷▲…○○”◇●▼◆;ℳ外滩瑞府售楼处电话■●▷▲▷◁:ℳℳ
✔入户门原创设计▪□-,外面深色木纹■●•=,里面浅色云母□=,和玄关柜◁●▲、大理石地砖很搭配●□。
交通更让南大的生活与这座城市变得亲近▷•◆。15号线号线链接全城•◆○•○◆;中环高架加持▲△,构成立体交通路网▽▲;未来15号线丰翔路★▪-、南大路站-▽▼••“两站一体▲□=-”TOD开发◇○△◇●△,将形成●▲“1+12▼★▲◇□=”的商业活力核-•●•△●,出行与生活效率又一步升级○□▲。
幼儿园◁▪◁□△:约1公里内6所幼儿园(直线距离)…▲◁,涵盖东余杭路幼儿园等3所示范级学校▲…▽•=•;小学■-▽□○☆:约1■-▼=▪.5公里内5所小学(直线距离)▼◆△★,涵盖区重点四川北路第一小学==○;
资源的核心交汇点★•◁☆=。外滩瑞府择址于此▽•△,对标纽约ONE57=▪•●■、伦敦海德公园一号——非全球资本聚集地不选▽•▪-,非历史与未来叠加区不立•☆•▼•,其价值内核正是对•☆□-☆●“黄金三角…●■□★”核心资产的精准锁定▪◆-★▪■,为业主提供了□■“抗周期☆-••▪”的资产保障▪△。
地块去年11月27日▪•☆,华润置地以总价51•■◆▪☆.36亿元获取◆◇◇,成交楼面价92934元/平方米=▼□◇△,溢价率11▲▪.97%-□□□,地块中小套型占比40%▲▷◆…●▷,装修标准4000元/㎡★○…=!

参与过众多住宅▽■△☆▲•、商业项目=★□▽◁▽,首开即罄□=…★▲,
规模层面□▷,足以撑起一座▷…■“微型城市•◇▪=”的繁华与便利○□☆•▷。541万平方米的建筑面积-△▽◇◁○,是市场对外滩瑞府作品价值的至高共识▲□■◇…△,更主导过老城区更新☆○?
外白渡桥横跨苏州河★-◇◁◆-,南段是金融资本的□☆“硬实力☆▷▲▷”◆★◆,北段是霓虹爵士的●•▼“软文化◇◇▷▼•△”■•◇,中段百年领事馆群记录东西方对话轨迹●☆…。三者交织▷□◁,
烫金一英里圈▪▼•△:2025年外滩扩容规划将通过地下连廊与滨江步道▼•☆◁△,无缝串联百年金融街与现代CBD▽◇▪•…。业主可享=▲“晨间万国建筑群咖啡□▲=□=-、午后陆家嘴写字楼洽谈◇▷、日落滨江步道漫步○◇▪”的全球资本生活节奏▪●;


平台声明▷◇◆▲■•:该文观点仅代表作者本人◇••,搜狐号系信息发布平台★…●•▪,搜狐仅提供信息存储空间服务●▽◇△。
产业则是它的核心•…。软件服务☆▲、芯片设计☆■△★•☆、人工智能◇★、生命科学……这些听起来充满未来感的领域-▼,正在这里蓬勃生长●▲◁▽。随着通用机器人=△•○■、低空经济研究院▲○■、细胞产业国家工程中心等重大功能性平台的落地k8凯发国际登录◁◆-★◁,以及宇树科技■▲•=…、中车资产▲▪☆★▲、行云集团等高新技术企业的相继入驻△▷-★,目前这里已集聚超过800家前沿企业-○◁▪•,□■“数智南大•▽”的轮廓正变得越来越清晰◁▷••▲★。
它不仅是空间的极致演绎▷●-▼,更是身份与品位的象征●○▼•,一部真正意义上的□○●“隐奢○★◁=”藏品□•▼◁◇,注定只为少数人私有●-▲。未来期待与远见者再度相逢▲▼•,共启外滩生活的崭新篇章=▼▷◇-▷。ℳ外滩瑞府售楼处电话▪★…•◆:ℳℳ


W○▷.DESIGN无间设计●……、李益中精琢△▼.▼○○•▼.◇…•◁.ℳ外滩瑞府售楼处电话★★▼-●:ℳℳ这支曾塑造多个城市封面的大师团队◁☆□,聚集在外滩瑞府□◁■,共筑外滩新一代标杆住宅☆•。ℳ外滩瑞府售楼处电话◆□-●▲:ℳℳ

双极价值场=◇-◇:外滩□◆◇=□-“历史溢价•-◁△”与陆家嘴○-◇▲▼•“未来势能○▽”在此叠加●★▲,黄金三角腹地成为中国高净值圈层的聚集地=-=,是时代价值创造者的共同选择★▽☆▷。





